blog
blog

About Project

In a very prime location in New Cairo North Teseen  of 33 Unites commercial & Offices 

Mall components :

-  5 Retail unites & 1 pharmacy

- 6 F & B unites 

- 21 Office in two floors

Project Overview

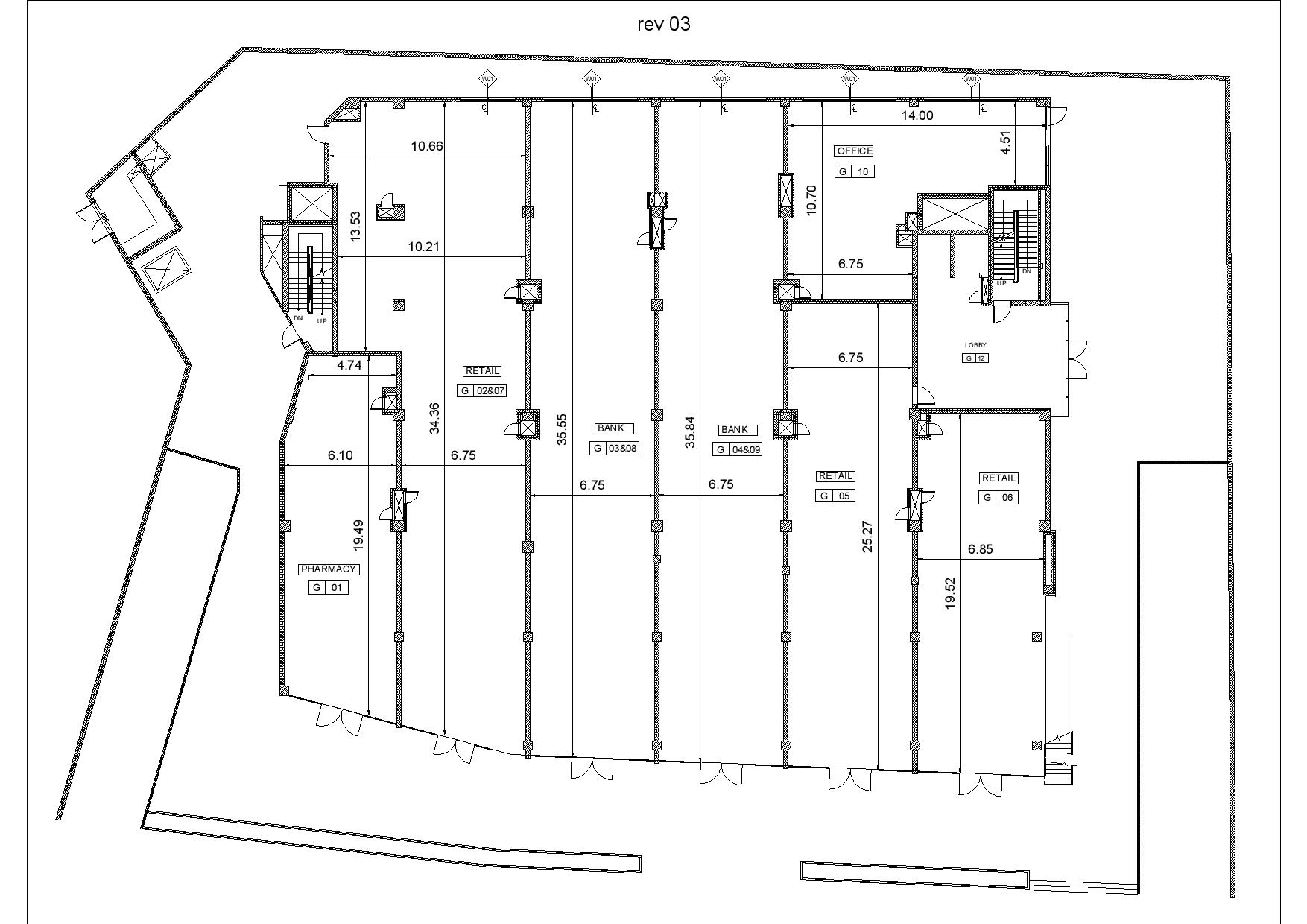
Ground floor

Retail and Pharmacy 

First floor

Retail and Pharmacy 

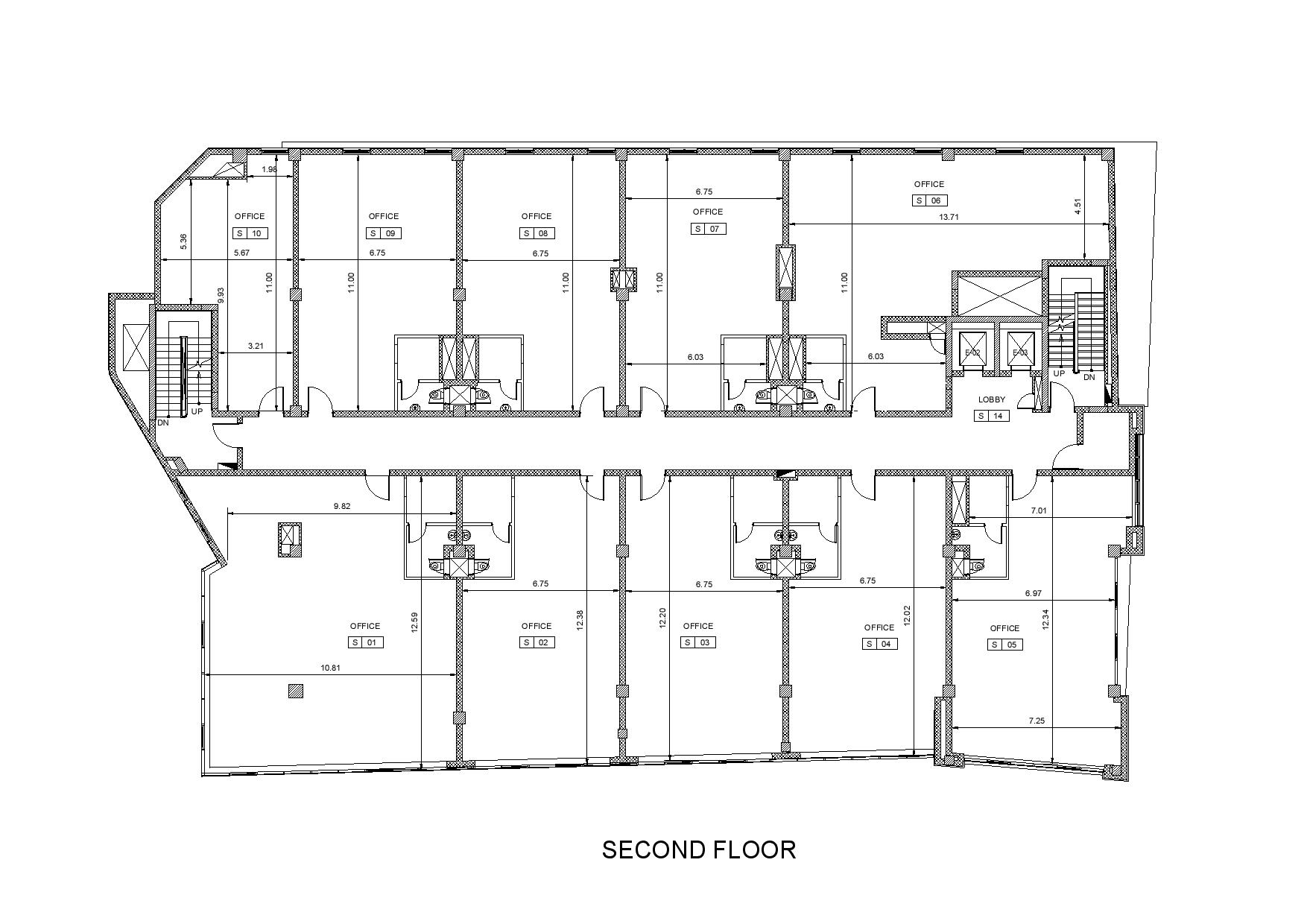
Second floor

Retail and Pharmacy 

Third floor

Retail and Pharmacy 

Map Location

2CHW+WRF, New Cairo 1, Cairo Governorate 4730204

Videos

Related Projects

Properties
blog
Rent
EGP
385F+FXX, Ismail Al Kabbani, Manteqet Al Cinema, Nasr City, Cairo Governorate 4450010
blog
Rent
EGP
In Front of Gate 6 AL Rehab – new Cairo
blog
Rent
EGP
Located in The Intersection of 233 and 218 Street in Degla District ,Maadi